Skip to main content
Search
Search...
GROUP-3C
Welcome to ME-182 Project Page
Share
Get link
Facebook
X
Pinterest
Email
Other Apps
May 11, 2020
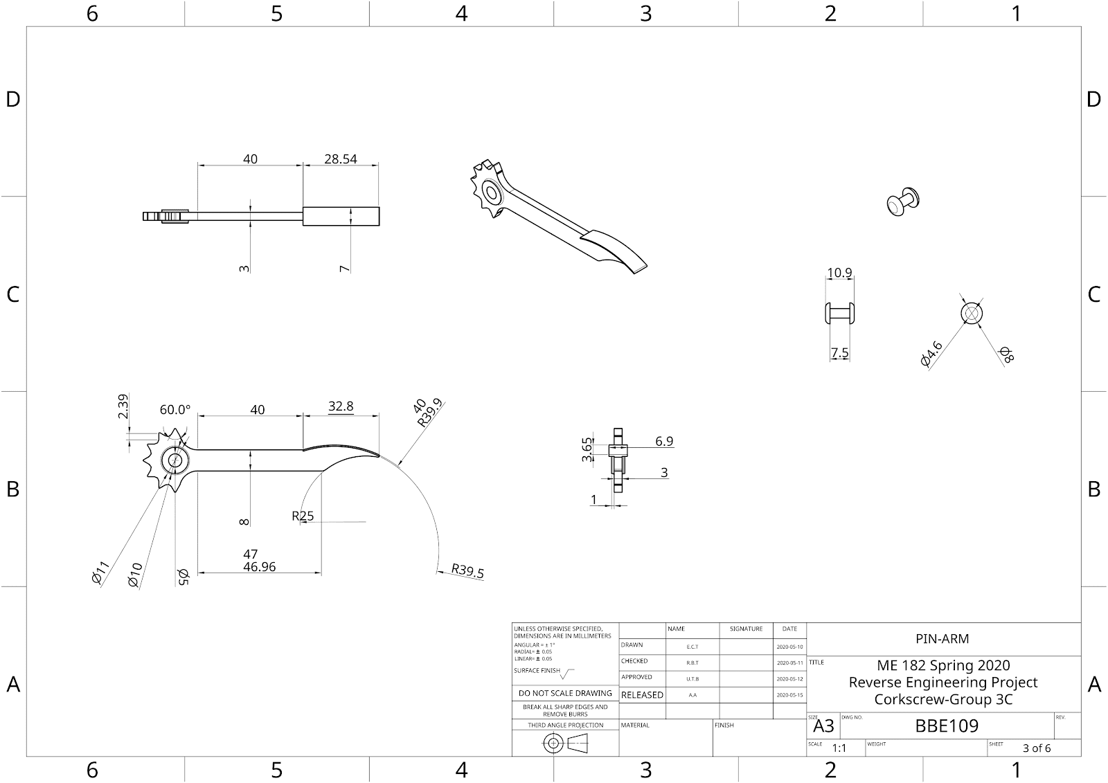
Arm-Pin Drawing
Comments
Comments
Post a Comment